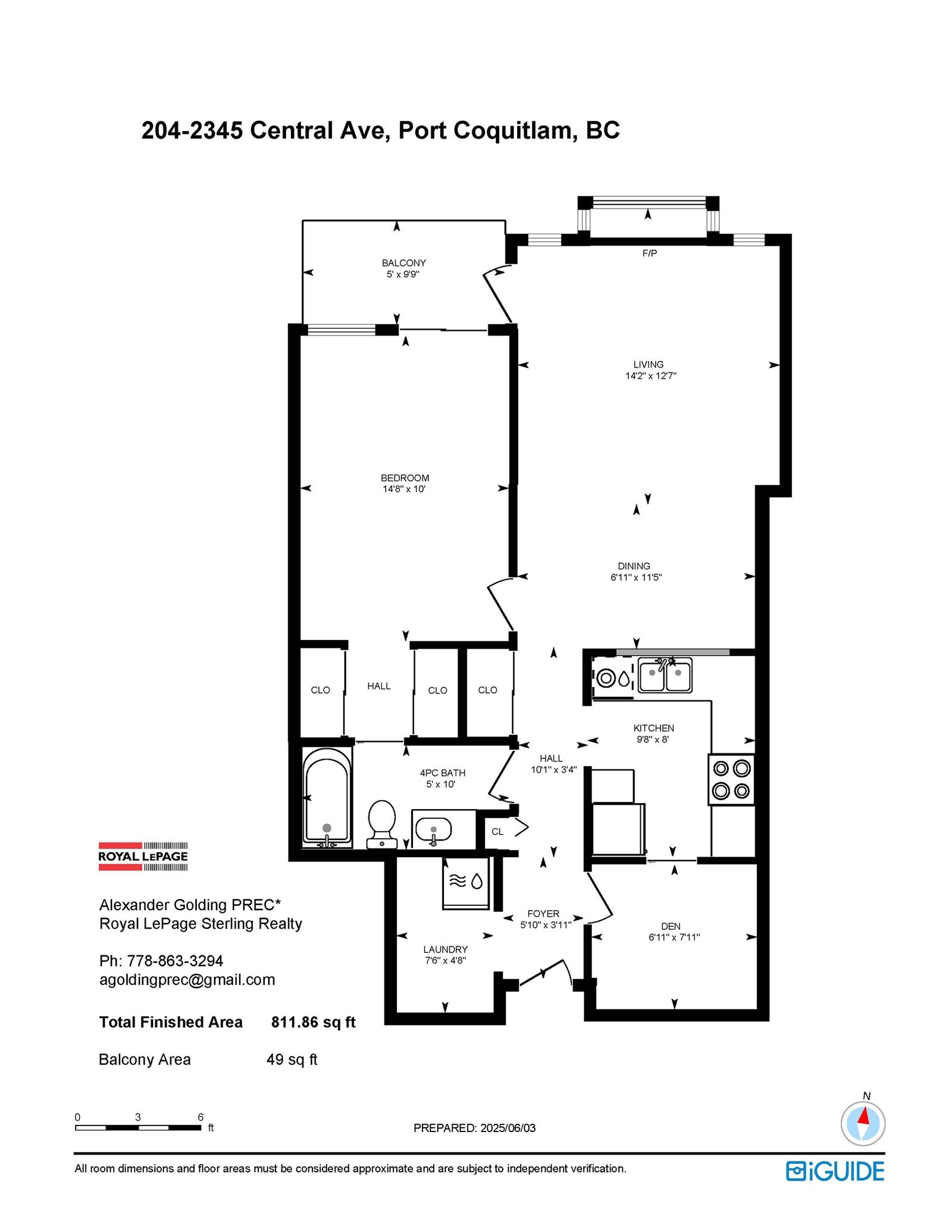
Welcome to this bright and spacious 1 bedroom + den home located in the highly desirable Central Port Coquitlam area. Featuring updated flooring throughout and convenient in-suite laundry, this unit offers plenty of storage and functional living space. The versatile den is perfect for a home office, nursery, or creative space. You'll love the unbeatable location just steps away from all levels of schools, Central Park, Gates Park, shopping, restaurants, and the West Coast Express for an easy commute. Whether you're a first-time buyer, downsizer, or investor, this home offers incredible value in a prime setting. AVAILABLE!
Address
204 - 2345 Central Avenue
List Price
$498,000
Property Type
Residential
Type of Dwelling
Apartment/Condo
Structure Type
Multi Family, Residential Attached
Transaction Type
Sale
Area
Port Coquitlam
Sub-Area
Central Pt Coquitlam
Bedrooms
1
Bathrooms
1
Floor Area
811 Sq. Ft.
Main Floor Area
811
Lot Features
Central Location, Cul-De-Sac, Recreation Nearby
Total Building Area
811
Year Built
1994
Maint. Fee
$383.59
MLS® Number
R3011180
Listing Brokerage
Royal LePage Sterling Realty
Basement Area
Partial
Postal Code
V3C 1V9
Zoning
RA-1
Ownership
Freehold Strata
Parking
Underground, Side Access
Parking Places (Total)
1
Tax Amount
$1,583.27
Tax Year
2023
Pets
Cats OK, Dogs OK, Number Limit (Two), Yes With Restrictions
Site Influences
Balcony, Central Location, Cul-De-Sac, Recreation Nearby, Shopping Nearby
Community Features
Shopping Nearby
Exterior Features
Balcony
Appliances
Washer/Dryer, Dishwasher, Refrigerator, Stove, Microwave
Interior Features
Elevator
Association
Yes
Board Or Association
Greater Vancouver
Association Amenities
Recreation Facilities, Caretaker, Trash, Maintenance Grounds, Gas, Management, Sewer, Snow Removal
Heating
Yes
Heat Type
Baseboard, Electric
Fireplace
Yes
Fireplace Features
Gas
Number of Fireplaces
1
Garage
Yes
Laundry Features
In Unit
Number Of Floors In Property
1
